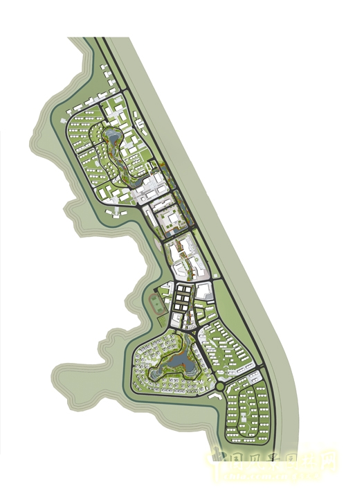
參賽項目:內蒙古克什克騰旗大唐未來城濕地公園(居住區)藝術景觀設計
2014-08-20 21:54:00 作者:海蘭 來源:中國風景園林網 瀏覽次數:
編輯:zhaoxi
凡注明“風景園林網”的所有文章、項目案例等內容,版權歸屬本網,未經本網授權不得轉載、摘編或利用其它方式使用上述作品。已經本網授權者,應在授權范圍內使用,并注明“來源:風景園林網”。違反上述聲明者,本網將追究其相關法律責任。
相關閱讀
探營廣州園博會:移步換景賞雅色 繡球簇擁廣州城
第30屆廣州園林博覽會將于3月24日至4月2日舉行,3月22日,記者提前探營廣州園博會多個會場花境,發現富有傳統和現代元素的造景、包含多個區域特色的小園圃等已逐漸展露真容【詳細】
天津第32屆運河桃花節舉辦
3月17日,第32屆天津運河桃花文化商貿旅游節如約而至。在北運河畔的桃花堤,微風輕拂,桃紅柳綠,人們三五成群地踏青、賞花,趕赴一場浪漫的春日之約【詳細】
海南大山泰景觀承建國家公園大門獲世界自然保護聯盟領導肯定...
在海南熱帶雨林國家公園五指山大門,陳俊霄向調研組匯報了國家公園大門(五指山)建設情況,章新勝對陳俊霄參與設計、海南大山泰景觀工程有限公司承建的國家公園大門(五指山)項目的創意主題【詳細】
海南首個園林式遺體器官捐獻者紀念園開園
三亞市遺體器官捐獻者紀念園坐落在三亞市荔枝溝路殯葬服務中心內、烈士紀念園旁,于2022年3月開工,2023年2月竣工,占地600余平方米,由三亞市人民政府投資建設【詳細】





