ECOLAND易蘭:成都麓湖紅石公園景觀設計
2016-07-13 15:00:25 來源:中國風景園林網 瀏覽次數:

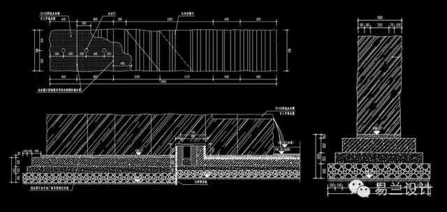
迎賓步道兩側的紅砂巖元素水景經過多套方案的推敲。道路與地塊之間的高差,通過擋墻和芒草使其變成景觀的一部分,吐水景墻從植物中伸出,你不知它來自哪里,只留潺潺的水聲。
編輯:shangxiyun
凡注明“風景園林網”的所有文章、項目案例等內容,版權歸屬本網,未經本網授權不得轉載、摘編或利用其它方式使用上述作品。已經本網授權者,應在授權范圍內使用,并注明“來源:風景園林網”。違反上述聲明者,本網將追究其相關法律責任。