案例賞析:與城市文化融合的成都鐘書閣

建筑師:唯想國際 (X+Living)
地址:中國成都
設計總監:李想
設計團隊:劉歡、范晨
項目類型:書店
建筑面積:1000.0 平方米
項目年份:2017



演講廳
"萬里橋西一草堂,百花潭水即滄浪。" 1200多年前,大詩人杜甫用這樣的詩句留下成都的溫潤記憶,諸如百花潭,草堂等歷史文化韻味十足的地名傳承至今。遍布大街小巷的茶館里,都可以一邊聽說書先生的滔滔不絕,一邊品著地道的蜀地名茶,因此成都的街巷文化也成為一道獨特的風景。成都,有著它特殊的文化氛圍和獨一無二的悠閑自在,貫穿于每個人的生活之中,恰到好處地展示著它的優雅和閑適。
一直把重視文化做為標簽的鐘書閣,也來到了獨具文化魅力的成都。項目位于成都天府大道上的銀泰中心,從商場扶梯步入4F,引入眼簾的便是最熟悉的鐘書閣標志的文字幕墻。為了更好的與這個充滿魅力的城市融合,文字幕墻也加入蜀地文化。請你去發現吧。

入口
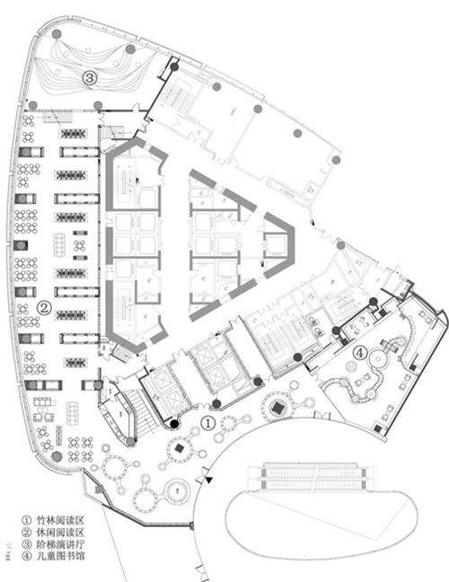
幕墻之后便是一個由一根根"竹型書架"充滿的空間。墻面則一直延續鐘書閣沉穩的書架造型,讓即使第一次來到這里的人,也有莫名的熟悉感,地面一個個仿似"竹筍"的小擺臺,活躍在這個寓意盎然的天地間。



"竹林"
穿過"竹林"的右側,便進入了兒童館,一個叢林樂園般的世界。墻面:一座座房子,風車和可愛的熊貓就仿佛隱藏竹林的背后,地面一條綿延不斷的休息棧道上跳躍著一朵朵的"大蘑菇"。為其下閱讀的小朋友撐起一把保護傘。當然鏡面天花做為鐘書閣另一個標志也不能缺席。
"竹林"左側,隱約可見的紅色磚墻,便是此間鐘書閣最具特色的地方。通高5米的空間,紅色磚墻一砌到頂,圍合成一個個獨立的小城區,空中一條步行棧道穿插著其中,時而繞墻而行,時而穿門而去。只為偶遇某一本心儀的書籍,盡情的徜徉在小小的城區中。全落地窗旁散落著可供休息的座椅,在午后溫暖的陽光下,品上一杯茶,讀著心儀的書籍,此生愜意溢于言表。


休閑閱讀區
走過"城區"端頭,登上一步書籍樓梯,便來到了演講廳。一條條看似隨意的線條組成了高低錯落的階梯,可行亦可坐。在鏡面天花的反射下,組合成一個上下映襯的"梯田",在這里可以聽上一場啟迪心靈的講座,抑或是一個引人深思的話劇。



演講廳 圖片均由邵峰攝
你沒來過成都,你不知道成都有多美,沒去過琴臺路,你不知道成都有多古。我們有理由相信,古琴臺的故事一直會延續,文君賣酒,相如撫琴的故事仍然會上演。而鐘書閣的故事也在繼續著。


一層平面圖

二層平面圖
相關閱讀
國內外建筑設計大師齊聚津城 共探城市文化建筑內涵
日前,由天津市濱海新區文化中心投資管理有限公司主辦,天津市建筑設計院、天津市城市規劃設計研究院、天津華匯工程建筑設計有限公司聯合承辦的【詳細】
岳陽:將建成“一核四片區”現代都市
近日,《岳陽市國民經濟和社會發展第十三個五年規劃綱要》首次公開發布,這是岳陽搶抓機遇、加快建設“一極三宜”江湖名城的第一個五年規劃。未來五年,岳陽這座城市將是一番怎樣的景象?如何彰顯城市魅力【詳細】
人民日報評論員觀察:讓城市成為文化的容器
惟有城市文化,能為舊城復興注入新生的力量,為新城崛起升華不滅的靈魂,為城市在競爭中創新發展、脫穎而出提供土壤和資源【詳細】