園冶杯專業獎:陽光城宜春檀府示范區
禪宗文化積淀深厚
月亮文化浪漫典雅
“行云流水意,水月空禪心”貫穿始終
借用禪宗文化演繹三進空間
項目名稱:陽光城宜春檀府示范區
項目位置:江西省宜春市
項目面積:5,000㎡
業主單位:宜春中冶天工秀江置業有限公司
設計單位:上海森意景觀設計有限公司
主創設計:楊蘭
設計團隊:陳湉婧、林智敏、洪月琴、丁前進、高文靜、黃旋
施工單位:湖南美源園林景觀工程有限責任公司
項目經理:晏經理
項目時間:2017.10-2018.04
項目概況
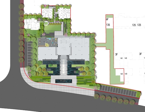
項目位于江西省宜春市袁州新城中心秀江東路以東,西南面的江景與濱江公園成為了本項目寶貴的借景資源?;刂苓吪涮自O施齊全,與沁園小學一路之隔,與萬達廣場隔江相望;基地周邊3km內分布有多勝樓、東湖公園、袁州公園以及禪都文化博覽園等城市重要開放空間及旅游景點,環境宜人,文化氛圍濃厚。示范區用地面積5000㎡,景觀面積3500㎡。

▲總平面圖
設計說明
示范區景觀風格:新中式風格;宜春是中國的禪宗圣地,禪宗文化積淀深厚;城南的明月山是月亮文化的發源地,宜春的月亮文化浪漫典雅,是這座城市文化的標志。
明月府示范區的景觀設計,從宜春的禪宗文化和月亮文化入手,借用宋代禪宗修行三境界演繹三進空間;新中式風格景觀的表現融入“山、水、月”三元素,從前場到后場將“行云流水意,水月空禪心”的主題貫穿始終。
設計思路
禪宗文化
宜春是中國的禪宗圣地,禪宗文化積淀深厚,市內擁有兩大名寺、三大祖庭、十大寺院和上千座佛塔,縱橫九嶺山脈,綿延500里。
月亮文化
宜春的月亮文化浪漫典雅,是這座城市文化的標志,位于城南的明月山是月亮文化的發源地,從2007年開始,宜春每年舉辦一屆月亮文化節。
設計亮點
行云流水意,水月空禪心
明月府示范區的景觀設計,從宜春的禪宗文化和月亮文化入手,借用宋代禪宗修行三境界演繹三進空間。與售樓處設計風格相匹配,景觀在新中式風格表現中融入“山、水、月”三元素,從前場到后場將“行云流水意,水月空禪心”的主題貫穿始終。
【宋代禪宗三境界】
第一境界 ——“落葉滿空山,何處尋芳跡”
第二境界 ——“空山無人,水流花開”
第三境界 ——“萬古長空,一朝風月”
第一進空間
落葉滿空山,何處尋芳跡
迎賓廣場的空間沿市政道路橫向展開,廣場中央矗立于水面之上的山形雕塑在第一時間建立起“山”的形象,水景兩側對景景墻對其后的空間形成部分遮擋,半掩半露,引人探尋。拾級而上,景墻立面的山形線條與臺地綠化邊緣的山形線條錯落重疊,綿綿延延,搭配整形的低矮灌木與草坪,在沿街界面演繹出第一重空山之境。


▲第一進空間效果圖

▲第一進空間效果圖

▲第一進空間效果圖
第二進空間
空山無人,水流花開
水作為一種自由而富有禪意的存在,在前庭由中軸步道向兩側空間漫延開,礫石、草地、樹陣穿插其中,靜止的水、涌動的水、有形的水、無形的水組合出無限的可能,掩映著藍天、樹林、建筑和月影,蘊藏著現代的情愫,渲染出婉約而不失靈性的氛圍。售樓處建筑立面的山形格柵與點狀布置的山形置石前后映襯,共同演繹著第二重空山之境。


▲第二進空間效果圖

▲第二進空間效果圖

▲第二進空間效果圖
第三進空間
萬古長空,一朝風月
后場的中心為一片純凈的陽光草坪,看房通道沿草坪東側向西、北折轉到達樣板房,一排花樹將樣板區與草坪的空間分隔開來,圍合出院落感。草坪東側,留白的景墻、微縮枯山水展臺與富有線條感的地面景觀組合增加了后院景觀的輕奢感;與之相對的草坪西側,則以一個抽象的“月”形藝術雕塑點明空間的意境主旨,使禪宗三境界的表現得以升華。


▲第三進空間效果圖

▲第三進空間效果圖

▲第三進空間效果圖
實景照片












編輯:楊賡
相關閱讀
2019園冶杯專業獎丨世茂北京·國風長安·云棠
秉承世茂國風系,“傳承與再造”的核心理念,履跡長安街百年風華,承襲千年西貴文化,結合老北京獨特的院落文化,對經典建筑內涵進行提取與再造。已貫通盛世文化精髓的意境人居,禮獻當代士族【詳細】
2019園冶杯專業獎丨大連龍湖·陽光城 雲峰原著
園地惟山林最勝,自成天然之趣,樓閣礙云霞而出沒,亭臺突池沼而參差,千巒環翠,萬壑流青?;負碛械锰飒毢竦淖匀毁Y源,借山水之勢為現代雅人致士打造一個理想的依山棲居場所【詳細】
2019園冶杯專業獎丨中鐵建·花語江南
昔日毗陵,方今常州。【詳細】
園冶杯專業獎:天瑞宸章示范區
建筑體量是18mx50m的盒子切斷了場地的連續性,需要重新組織空間的排列,把建筑當作其中的一個容器,每個動線必達的容器,除了自身的特征以外,更重要的是跟下一個容器的關聯關系【詳細】


