園冶杯專業獎:新塘路(新風路-新業路)綜合整治工程景觀綠化Ⅰ標段
項目名稱:新塘路(新風路-新業路)綜合整治工程景觀綠化Ⅰ標段
項目位置:浙江省杭州市
項目面積:5.8萬㎡
業主單位:杭州市江干區道路建設整治中心
設計單位:中國美術學院風景建筑設計研究總院有限公司
主創設計:姚奇特
施工單位:杭州市園林綠化股份有限公司
項目經理:魏坤義
項目時間:2016.01.11-2016.06.25
項目概況
本工程由杭州市江干區道路建設整治中心投資建設,杭州市市政公用建設開發公司進行代理管理,中國美術學院風景建筑設計研究總院有限公司設計,杭州市城市建設監理有限公司負責監理,杭州市園林綠化股份有限公司中標施工。施工范圍包括中央隔離帶、機非隔離帶、沿線綠地等;施工內容包括綠化種植、景墻、土方工程、硬質鋪裝、水電工程及噴灌系統等。

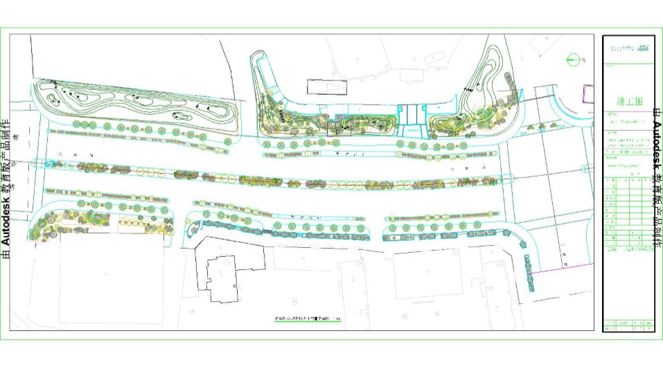
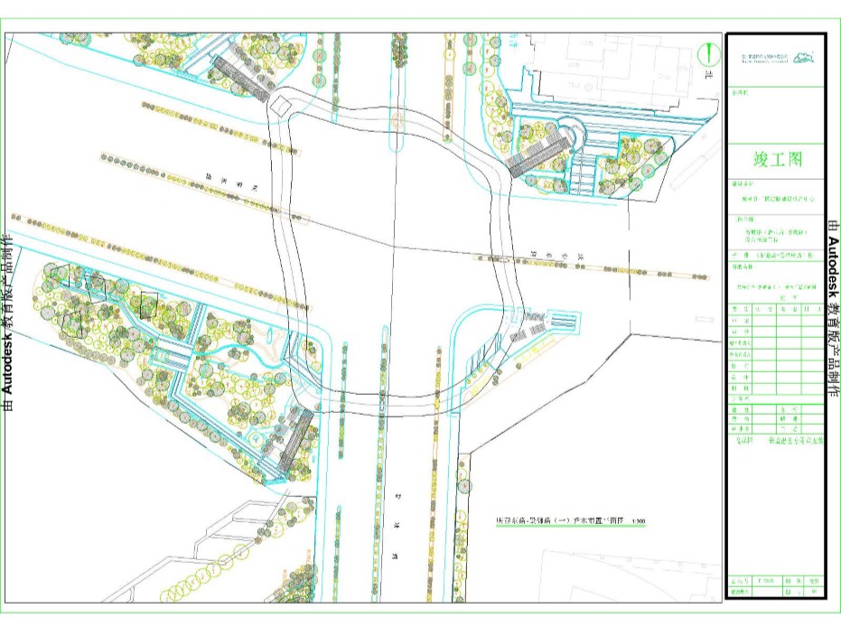
▲總平面圖1

▲總平面圖2

▲總平面圖3

▲總平面圖4
設計理念
在景觀營造上以自然式造園手法為主,著重強調生態效益,采用群落式植物配置,道路綠地與城市綠地自然融合,真正地形成了“路在綠中、車在綠中、人在綠中”的生態效果。行道樹以香樟為主,機非隔離帶以銀杏為主,中央隔離帶主要是樸樹、櫻花、紅花檵木球、紅楓及造型羅漢松。其主干道主要節點以羅漢松、紫薇等造型樹作為主要景觀植物并搭配各種形狀的太湖石造景,四周種植色彩豐富的觀賞花卉和草坪,達到大氣、美觀的效果。
施工工藝
新工藝
在綠化施工過程中,著重強調色彩構成,通過搭配種植速生、中生、慢生的樹種,使得道路中央一級兩側的綠化帶被植物覆蓋均勻,形成層次豐富、顏色鮮明、物種多樣的可持續植物群落,展現出現代的自然園林新概念。
新材料
杭州當地原生土為沙土,采用我公司自行研制的“竹炭土”,改善了土壤團粒結構,激活了土壤生物活性,提高了植物的成活率;通過將錢塘文化與都市文化的融合,創造出藝術造型的車擋石、藝術城墻等小型設施。
新理念
在充分領悟設計理念的前提下,通過施工的二次創造,成功地打造了“全國首例把群落組合與盆景化手法運用于城市道路中央分隔帶的綠化工程”,形成良好生態效應和景觀效果。
特色亮點
1、淡淡鄉愁 濃濃人文
老新塘街市始于明代,一直是杭州的蔬菜、蠶桑和藥材的種植基地,有深厚的農耕文化,是城東一帶人氣較旺的街市。解放前后,新塘曾是杭州城東三大集鎮(新塘、七堡、彭埠)之一,兩邊商鋪林立,生意興隆。在深入挖掘歷史文化的基礎上,在道路重要節點設置了反映新塘集市農耕文化的雕塑,喚醒了人們對城市歷史的記憶。

▲景觀雕塑
位于新塘路與慶春東路交叉口的江干城管驛站,是江干區城管局為了解決一線作業人員飲水難、熱飯難、歇息難等問題而設置的多功能休息場所。其桔黃色的建筑外觀與周邊道路景觀和諧相融,成為新塘路上的一大亮點。驛站建設全面提升了一線職工的認同感、幸福感、歸屬感,是受到政府高度評價、市民高度贊譽的民心工程。

▲江干城管驛站
2、鄉土樹種 都市氣質
植物配置以鄉土樹種為主,創新道路綠化組團式結構。行道樹以香樟為主,枝葉茂密而秀麗,遮蔭良好;機非隔離帶以銀杏為主,樹冠濃密,樹干通直,樹形美觀,是優良的觀賞樹;中央隔離帶以樸樹、櫻花、紅花檵木球、紅楓及造型羅漢松為主,營造出濃郁的杭州特色。

▲路側綠化
位于新塘路和慶春路交叉口的慶新天橋是新塘路綜合整治工程的標志性建筑之一,也是杭州首座仿生態學原理的異形人行天橋。橋面獨特的景觀造型宛如一條風景秀美的彩色飄帶,充分體現了時代風貌、都市氣質和國際視野。

▲新塘路和慶春路交叉口
3、群落結構 盆景創作
新塘路首次在道路中分帶采用群落組合和盆景化的植物配置手法,把現代園林的流暢、空間、大手筆的表現手法和古典園林的步移景異、小中見大合理巧妙地結合在一起,獨具匠心。

▲路側綠化
群落結構的空間配置直接影響到道路綠地的生態功能。喬、灌、草多層立體結構的混交群落營造出穩定的生態景觀效果,能夠很大程度上發揮其消煙、滯塵、減噪等作用,充分體現了生態造園的理念,進一步完善了城市道路綠地生態系統。城市生態環境的可持續發展。

▲路側綠化
秉承工匠精神,創作出了特色鮮明的景觀雕塑和藝術裝飾。道路沿線原來形式突兀的市政設施,在匠人們的無限創意下,被美化成了一個個充滿趣味的景觀小品,獨具“新塘”特色,極富文化內涵,更寓意著杭州邁向“錢江時代”的大氣豪邁。
4、生命體現 藝術再現
在領悟設計理念的前提下,四方單位共同努力進行了二次創作,將沿街商鋪、住宅、行人與景觀綠化有機融合,形成了一個和諧共生的生態有機體,是生命的體現,亦是藝術的再現。

▲中央分割帶綠化
如,在杭州市錢新幼兒園旁設置了供學生及家長休閑游憩的場所,將人與景觀綠化有機結合,漫步其中,不僅僅是置身綠色森林,更多的是帶給人充滿詩意的園林體驗,極大地提升了城市品位。

▲路側小公園
新塘路集景觀與文化于一體,開闊大氣,充滿生機,好似一曲“流動的音符”,充滿了“跳動的詩意”。一如中外媒體對G20峰會杭州城市景觀的評價:充分體現了“杭州風情、江南韻味、中國特色、世界大同”的景觀氣質,展示了“師法自然、天人合一”的東方園林風情,在杭州的城市園林建設中留下了濃墨重彩的一筆!

▲路側綠化

▲路側綠化

▲路側綠化

▲慶新天橋

▲雨水井設施
▲中央分割綠化帶

▲中央分割綠化帶
編輯:楊賡
相關閱讀
江蘇揚州:今年實施五大攻堅行動提升城市綠化
城市道路綠化增綠行動。利用今年春季綠化黃金季節,針對城市道路綠化達標率、林蔭路覆蓋率等指標,全面開展道路綠化增綠提綠補綠,重點對87條道路的行道樹“有綠無蔭、有景少蔭”、綠化品種單一等問題進行整改,形成配置合理、錯落有致、層次清晰的道路綠化景觀【詳細】
北京昌平新城東區將打造濱水商業消費新地標
昌平新城東區位于昌平區南邵鎮,規劃建設用地面積11平方公里,規劃人口12萬,圍繞打造首都北部消費新地標編織街區控規已獲批。未來,昌平新城東區將打造成為京北體驗消費示范區、山水宜居典范城區、高水平綜合服務承載區和智慧產研創新園區【詳細】
南寧園博園舉辦“禮樂園博·南寧花朝盛典”
活動期間,南寧園博園還舉辦了漢服新秀大賽、同袍巡游、及笄成人禮、國風婚禮妝照展示、明制婚禮儀式典禮、六藝游園、書畫體驗、國風集市等精彩紛呈的活動,同時邀請眾多知名國風模特參與表演展示【詳細】
成都首屆“最美公園”評選結果出爐
據成都市公園城市建設管理局相關負責人介紹,本次“最美公園”評選范圍包括23個區(市)縣已建成開放的1514個公園,包括綜合公園、口袋公園,還有郊野公園【詳細】



