園冶杯專業獎:曼谷LINE Phahon Pradipat公寓
項目名稱:The Line Phahon Pradipat
項目地點:泰國曼谷
項目面積:7,995㎡
業主單位:Sansiri Public Co.,Ltd
設計單位:TK Studio Co., Ltd.
主創設計:Tawatchai Kobkaikit
設計團隊:Naratip Bundi、Thannaphat Tonnuea、Chatyaporn Poomchart
施工單位:Koranit Construction Co.,Ltd
設計時間:2016.03.08-2016.11.01
項目概述
在曼谷這樣的大城市中,生活很繁忙,這就使得居住地尤為重要,尤其是對于上下班面臨嚴重堵車的上班族。大城市的生活使他們疲倦,因此,一個便利舒適的生活場所顯得尤為重要,能讓他們繁忙的一天之后獲得更多康復機會。

▲總平面圖
LINE Phahon Pradipat是一座高樓公寓,坐落于曼谷北部一條主路Phahonyotin空軌車站旁。從LINE可以步行到空軌車站,使得進出CBD地區非常方便。此地周圍都是居住樓和老舊貿易區。LINE占地7914平米,有著981個單元和46層樓,被認為是密度很高的公寓。在有限的空間內,LINE考慮創造了一個像家一樣的環境給居民享受和休息,就好像他們住在小別墅里一樣。
設計理念
景觀設計師意在創造一個“家庭花園”給LINE的居民們,當他們到達此地,能夠感受到歸家的溫暖。家庭花園通常被分成幾個小部分:前庭、后院和陽臺花園,因此在LINE的景觀空間反映著這些空間。此外,家庭花園設計通常表現出業主的喜好和風格,配著一些家具和自然結構,相對于公寓景觀相對簡單和一些結構以及直線。因此,景觀設計師在LINE的花園中結合了這些不同之處。廣場模塊還包括座椅、小瀑布和露臺。另一方面,樹、灌木和地被被大量加入了廣場模塊中。LINE將這兩個景觀特征疊加起來,讓使用者有在家的感覺。
前庭
在前庭的下沉區域,給住民和他們的客人提供了溫暖的迎接,使用了用石頭鋪的廣場和開放草坪。通道中有著小溝和裝飾性草坪花園,配合著一個放松性過路方式供每個人使用。這個雕塑性的樹被選用加入裝飾元素,來加強建筑設計和空間。

▲前廳平面圖

▲前廳

▲前廳
秘密花園
在項目地點的南部,有著名為“秘密花園”的LINE俱樂部。這個空間意味著私人花園區,也就是只有住民才能去。花園角落的花崗巖瀑布提供了自然聲音阻擋外界干擾。還有,多年生的花被謹慎選擇來反映四季變化。

▲秘密花園平面圖

▲秘密花園

▲秘密花園
陽臺花園
位于10樓的游泳池區被設計為陽臺花園,只在房子外一點大部分在花園內。在高層,居民們可以欣賞到30米長的泳池全景。這個長泳池由小型健身泳池、放松泳池、按摩缸和兒童泳池組成,所以每個家庭隨時都可以使用泳池。

▲陽臺花園平面圖

▲陽臺花園

▲陽臺花園

▲陽臺花園
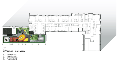
兒童花園
兒童花園位于36樓,該處座椅被亮色涂鴉,和游園廣場的設備一起,為兒童創造出有趣的環境。下沉型座椅在沙坑旁邊,讓父母可以看護兒童玩耍。

▲兒童畫院平面圖

▲兒童畫院
后院
47樓的花園是給住民的后院,由活動草坪、藤本棚和菜地組成。這里是可以給住民舉辦特殊活動和慶典的地方。

▲后院平面圖

▲后院

▲后院
LINE使用有限的空間提供了安靜放松的家給全年齡住民,為了確保最舒適的氣氛,讓住民遠離大城市的喧囂,就像在家一樣。
實景圖片







編輯:楊賡
相關閱讀
江蘇揚州:今年實施五大攻堅行動提升城市綠化
城市道路綠化增綠行動。利用今年春季綠化黃金季節,針對城市道路綠化達標率、林蔭路覆蓋率等指標,全面開展道路綠化增綠提綠補綠,重點對87條道路的行道樹“有綠無蔭、有景少蔭”、綠化品種單一等問題進行整改,形成配置合理、錯落有致、層次清晰的道路綠化景觀【詳細】
北京昌平新城東區將打造濱水商業消費新地標
昌平新城東區位于昌平區南邵鎮,規劃建設用地面積11平方公里,規劃人口12萬,圍繞打造首都北部消費新地標編織街區控規已獲批。未來,昌平新城東區將打造成為京北體驗消費示范區、山水宜居典范城區、高水平綜合服務承載區和智慧產研創新園區【詳細】
南寧園博園舉辦“禮樂園博·南寧花朝盛典”
活動期間,南寧園博園還舉辦了漢服新秀大賽、同袍巡游、及笄成人禮、國風婚禮妝照展示、明制婚禮儀式典禮、六藝游園、書畫體驗、國風集市等精彩紛呈的活動,同時邀請眾多知名國風模特參與表演展示【詳細】
成都首屆“最美公園”評選結果出爐
據成都市公園城市建設管理局相關負責人介紹,本次“最美公園”評選范圍包括23個區(市)縣已建成開放的1514個公園,包括綜合公園、口袋公園,還有郊野公園【詳細】



