讓人放松的城市角落——越南胡志明市Wasp House
項目名稱:Wasp House
項目地點:越南,胡志明市(Ho Chi Minh City, Vietnam)
場地面積: 24,5 ㎡
建筑面積: 73,5 ㎡
建筑設計:Tropical Space Co.,Ltd
設計團隊:Nguyen Hai Long, Tran Thi Ngu Ngon, Nguyen Anh Duc, Trinh Thanh Tu, Nguyen Thi Thuy
結構工程師: Bach Ngoc Hoang
竣工年份: 2015
攝影師: Quang Dam
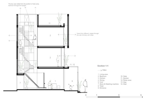
Wasp House 是一棟3.5米x7米的房子,位于胡志明市新平郡(Binh Tan District)的華越社區。房子是為兩兄妹建造的,有兩層,每層都是臥室。這棟房子強調獨一無二的樓梯,它不僅被用作樓梯本身,而且是一個種花、讀書或者就是簡單地坐下來放松的角落。




房子里陽光充足,屋頂上有玻璃,磚墻上有洞。陽光與鄉土磚創造了一個情感豐富的親密空間。
大門和柵欄的設計很簡單,用金屬格柵來種植藤蔓植物。未來,這些藤蔓將會覆蓋房子的立面從而有助于過濾灰塵。






為了節約成本,建筑師簡化了細節、材料和家具,優化了功能空間,并降低了層高。
秉持著“漂亮的房子不僅是給高收入人群的”理念,設計團隊希望為社區帶來明亮而活潑的居住空間。








編輯:李海英
相關閱讀
江蘇揚州:今年實施五大攻堅行動提升城市綠化
城市道路綠化增綠行動。利用今年春季綠化黃金季節,針對城市道路綠化達標率、林蔭路覆蓋率等指標,全面開展道路綠化增綠提綠補綠,重點對87條道路的行道樹“有綠無蔭、有景少蔭”、綠化品種單一等問題進行整改,形成配置合理、錯落有致、層次清晰的道路綠化景觀【詳細】
北京昌平新城東區將打造濱水商業消費新地標
昌平新城東區位于昌平區南邵鎮,規劃建設用地面積11平方公里,規劃人口12萬,圍繞打造首都北部消費新地標編織街區控規已獲批。未來,昌平新城東區將打造成為京北體驗消費示范區、山水宜居典范城區、高水平綜合服務承載區和智慧產研創新園區【詳細】
南寧園博園舉辦“禮樂園博·南寧花朝盛典”
活動期間,南寧園博園還舉辦了漢服新秀大賽、同袍巡游、及笄成人禮、國風婚禮妝照展示、明制婚禮儀式典禮、六藝游園、書畫體驗、國風集市等精彩紛呈的活動,同時邀請眾多知名國風模特參與表演展示【詳細】
成都首屆“最美公園”評選結果出爐
據成都市公園城市建設管理局相關負責人介紹,本次“最美公園”評選范圍包括23個區(市)縣已建成開放的1514個公園,包括綜合公園、口袋公園,還有郊野公園【詳細】



