空間的折疊——折疊聚落F3.stu

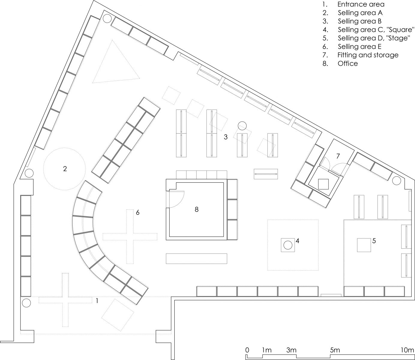
折疊聚落項目是服裝品牌F3.stu門店設計的工作標題。它因為其本身的空間特征及操作辦法上的淵源而得名。新成立的F3.stu品牌主要從事皮具服裝行業,迫切需要一個有著簡介冷靜品味的店面以和時下全球流行區域對接。在最初的碰面中,業主提出了通過開放店面配合功能流線吸引客流進入的愿望。以現狀面積作為前提,業主的要求直接指向了空間的折疊。這一概念在會面當天落實在草圖上,后經逐步深化并最后落地。
現場的邊界令人興奮。邊界上部的兩條斜線與下面的正交體系形成了激烈的沖突。它在呼喚一個以正交形態出現的內核,用更近的距離強化由不同角度形成的空間強度。這個內核不需要太大,剛好能夠容納業主所需要的辦公空間。試衣間與與小型儲藏室組成另一個獨立的體量,占據由兩根距離極近的現狀柱子所控制的不利邊角處。它順應了邊界上部斜線的角度沖突并將其向下延伸至整體空間中。



入口的部分也極為關鍵。地處L型商業內街的轉角處,一個由貨柜建立的傾斜界面將會更為有效承接來自L型內街兩個不同方向的視線,并通過一條柔和的弧線向內延展,在空間起點形成了帶有明確引導性的區域。
至此,通過以上三個動作,空間的折疊得以完成——它由新邊界約束,并將入口的開敞和原有邊界的空間張力傳遞其中,也完全容納了業主最終關于功能期待。

空間的流動被天空中一系列幾何發光體引導。它們通過纖細的鋼索懸吊,在深灰色的背景中以明確的“漂浮”姿態出現。起點和終點應用同樣的十字形發光體作為提示——它們絕不是什么神圣的法器,而是數學中最為基礎的“加號”。起點處所“竊用”的運算,試圖建立的是空間與數學的通感和移情。起點和終點的標識除了提示自身外,也以小小的游戲性暗示了空間的折疊。但這所謂的起始實則近在咫尺。它們以相同的形態透過弧線邊界的透明進行著對視,也相互回憶著二者之間所有的經驗。


圓形緊接著出現,它是世界上最著名的無理數,也滿懷著溫柔的心緒。它與弧線配合,限定了引導區域的空間性格。再之后是三角形,它有著堅強有力的形象,理所應當的承擔著指引的任務。連續的小方體接續著傳遞,將空間引入由辦公室及服務型小體量配合限定的廣場。在這個空間里進行任何實體的動作都會顯得有些小氣,也會讓位于其右側本來就難以達到的盡端陷入更加不利的局面。不妨把它空出來,讓空間的交鋒匯集。巨大的方形發光體在這里控制局面,它和其下的廣場互相賦予對方自由的意味。


聚落的廣場都伴隨著表演。才還處于不利位置的盡端空間,以小小的標高差異模擬了舞臺的空間。專門投射在中央位置的光線提示著演員登場的調度。站在這里回望,起點處的柔和曲線折疊后再次出現,引導空間新一輪的循環。這個循環運轉的動象由曲線抽離,并被附著到終點的“加號”上。于是,它就成為了運動的數學,而數學本就是最真實的運動。一個階梯形體在新循環處等候,它是向天空的通道,指引著前進的方向。






項目名稱:折疊聚落F3.stu
項目地點:浙江省海寧市
項目面積:296.9平米
設計單位:Atelier Prospering
主持設計:禹航
設計團隊:禹航、范高萁、徐望舒
項目時間:2018年7月
編輯:李夢麗
相關閱讀
江蘇揚州:今年實施五大攻堅行動提升城市綠化
城市道路綠化增綠行動。利用今年春季綠化黃金季節,針對城市道路綠化達標率、林蔭路覆蓋率等指標,全面開展道路綠化增綠提綠補綠,重點對87條道路的行道樹“有綠無蔭、有景少蔭”、綠化品種單一等問題進行整改,形成配置合理、錯落有致、層次清晰的道路綠化景觀【詳細】
北京昌平新城東區將打造濱水商業消費新地標
昌平新城東區位于昌平區南邵鎮,規劃建設用地面積11平方公里,規劃人口12萬,圍繞打造首都北部消費新地標編織街區控規已獲批。未來,昌平新城東區將打造成為京北體驗消費示范區、山水宜居典范城區、高水平綜合服務承載區和智慧產研創新園區【詳細】
南寧園博園舉辦“禮樂園博·南寧花朝盛典”
活動期間,南寧園博園還舉辦了漢服新秀大賽、同袍巡游、及笄成人禮、國風婚禮妝照展示、明制婚禮儀式典禮、六藝游園、書畫體驗、國風集市等精彩紛呈的活動,同時邀請眾多知名國風模特參與表演展示【詳細】
成都首屆“最美公園”評選結果出爐
據成都市公園城市建設管理局相關負責人介紹,本次“最美公園”評選范圍包括23個區(市)縣已建成開放的1514個公園,包括綜合公園、口袋公園,還有郊野公園【詳細】



