新西林景觀丨舊景新改——東莞首鑄御峰華庭
舊景觀項目的改造,一直都是SED景觀設計師探尋的課題。如同舊城更新一般,“舊景新改”的設計把更多的新生價值建塑在舊場地之中,追求空間肌理上精神的認同感,考慮人性化的居住尺度,解決著新生景觀與人的和諧關系。正如我們藏于長安鎮市井之中的東莞首鑄御峰華庭景觀提升項目。




▲項目提升后實景
舊區新生
擇址于東莞市長安鎮城心的首鑄·御峰華庭,處在大灣區中軸上,其前身是一座藏匿城中村的餐吧,委托方通過臨時租用當做營銷展示區域,希望SED設計師們對原區庭院空間的改造和提升,在原本陳舊的城中村中打造獨樹一幟的居住品質形象,既能滿足居住舒適性,又能利用公共空間展開活動,增進互動。


▲項目區位
舊改挑戰
項目周邊是由來已久的傳統居住區,車水馬龍、雜鋪林立,充斥著濃郁的市井生活氣息。真實、喧鬧、擁擠、繁忙的城中村肌理是SED設計師對項目的第一印象,而且項目占地面積在2000㎡以內,所以在改造的過程中,有著諸多的問題等待著SED的設計師們去領會和解決。
(1)項目位于城中村區,周邊環境雜亂,居民樓房過高造成了空間和視野的封閉;
(2)原來場地的界面高差,增加了立面展示的層次,但是也增加了高差消化的難度;
(3)周邊停車位緊張,項目景觀的規劃中需要考量停車位的設計;
(4)停車場入口區域保留原場地的3棵芒果樹,在不破壞植物的情況下進行適宜的場地設計,對于設計師來說,也是一大設計考驗;
(5)該場地作為臨時展示區,不會永久保存,所以在設計中,要考慮到委托方的成本投入和短期效益。

▲項目原貌及周邊環境
舊改方案
SED設計師面對項目亟待解決的諸多問題,通過運用強大的感知能力和洞察能力,去關注人的需求、關注場地與周邊的關系,對原場地進行解析。


▲項目設計元素提取

▲項目功能定位及動線規劃
從山水之境中提取設計線條塑造空間邊界感的同時,保證空間的通透感和互動性,搭建起人與場地、與周邊的人的鏈接,讓功能和美學在空間中融合得更有余地,讓人與景在山水交融中規避喧鬧、修復自我、釋放身心。

▲項目空間規劃

▲項目景觀總平
1 界面高差的消化
項目原場地的界面存在一定的高差,高圍擋和臺階的存在,容易造成項目與人的視覺和心里隔閡,不利于客戶的體驗感,加上沿街的商鋪建筑參差不齊,增加了場地空間各區脈絡疏通的難度。


▲項目場地原樣
SED的設計師在此區域的實際設計中,以人性化的體驗感為改造的出發點,利用富有層次的階級水景來消化高差帶來的挑戰,盡可能地滿足場地的需求。

▲跌級水景施工過程


▲跌級水景實景
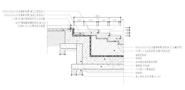
跌級水景的設計中,最考驗設計師和現場施工工藝的設計難點是,如何將LED燈帶鑲嵌到不銹鋼之中,使流水和燈光的流動閃爍,賦予了項目夜晚美麗而靈動的氣息。這是本案項目的設計亮點,也是我司首次在景觀項目中的設計嘗試。



▲跌級水景剖面圖


▲流水燈帶的夜晚實景
2 鄰近居民房的立面設計
場地所屬位置的特殊性及原有高差抬高界面的影響,給人視覺上的封閉感,加上營銷中心的樓層打造低于周邊建筑,所以項目的昭示被嚴重阻擋。同時,此處還有考慮到鄰近居民的出入體驗和流線,在不被項目營銷中心樓面的影響下,正常出入。


▲項目場地原樣
為此,SED設計師們通過立面綠植的打造,將項目營銷中心與居民樓房的交界處,變成一個綠色主題的視覺區,以它鮮活的生命力與參與度,激活人們的視覺焦點,增強空間的通透感。


▲項目場地提升后實景
為了照顧到鄰近居民的出入需求,項目設計中利用礫石與汀步的結合,打造了充滿趣味“歸家之路”。



▲項目場地提升后實景
3 開放空間的利用
2000㎡以內的項目占地面積,既要滿足項目的營銷活動空間需要,又要規劃出可用的停車位;既要設計好人性化的參觀系統,又要充足的空間體驗感;既要考量委托方的短期效益,又要考慮鄰近居民的出入體驗...SED設計師們面臨的景觀設計挑戰不言而喻。


項目景觀設計過程中,應委托方的需求,保留位于原場地停車場出入口的3棵芒果樹,要求設計師根據芒果樹的區域特點及現場的植物搭配,進行場地設計。

▲項目場地原樣
設計師通過收集、分析、權衡與協調不同使用者的訴求及現場場地特點,打造了開放式的立體動線貫穿而成的公共空間,有效引導客戶的參觀體驗,為委托方預留了可利用的營銷活動展示空間。同時,在保留現有的植樹的情況下,以坡度處理處理停車場區域高差,適當增加綠植的使用。


▲項目場地提升后實景
SED設計師們針對項目現場進行脈絡通暢和難點解析之后,就開始景觀空間的重構,賦予了項目全新的形象何獨特性,增強了它在人群中的昭示、辨識和記憶。
空間重構
景觀在這里不斷生長,與使用者、周邊鄰里交融在一起,生生不息。
山之形
眼前的庭院極簡通透,沒有多余的裝飾,以水景的流線感將整個空間連貫起來,曲水、山形、光影…這些元素都一起被設計在這方空間里,共生共息,形成一種絕妙的平衡,讓人流連忘返。


LOGO主題景墻的設計點亮了空間,通過材質的對比與藝術掛畫的意境營造,傳達出自然、沉穩、溫潤的氛圍。



水之韻
與自然巧妙融合的已經都被藏在了潺潺流水之中,從高處往下看,層層漣漪在空氣中暈開,化成了清靈之感。


華燈之下,每一條曲線,每一道閃著光的漣漪,每一處籠罩著昏黃的色彩,都匯成了這所空間最為多形和飽滿的旋律,演繹著獨有的雅趣與暖意。庭院主景樹在燈光的籠罩下,彰顯了夜晚的生命力。


居之雅
在營銷中心右側的一角,出其不意的放置了一座彩色玻璃山形雕塑,為這個空間增添了趣味性和活力。雕塑沿邊的設計,利用燈帶進行區隔,使水在流動的情況下不僅不會濺到鋪磚上,而且還能與燈光相融合,營造“水光弄影”的畫面感。


雕塑遠看像曲子的譜,錯落起伏,近看規整有序,從不同的角度看,對事物的感知也不同,帶來了一種動感和靜謐相依存的直觀感覺。


舊改感悟
有溫度的設計,一定是尊重人的需求的。
東莞首鑄·御峰華庭的景觀改造,從原有的場地條件出發,科學地權衡了不同人群的訴求,增加項目與城市相銜接的融合度、維持了與所處區域的粘合性,又保持身處鬧市而不失靜雅的獨特性。

項目也為面積小而功能全的景觀提升和打造,提供了一個全新的范本,用心、溫暖、有質感,試問,這樣的境地又有誰能抗拒呢?!
項目信息
項目名稱:東莞首鑄·御峰華庭
項目地點:廣東省東莞市
項目規模:1600㎡(展示區)
委托業主:首鑄(廣東)集團有限公司
業主團隊:徐洪軍、鐘許帆、曹崢
景觀設計:SED新西林景觀國際(深圳總部)
設計團隊:黃劍鋒、沈丙華、曾斌、趙洪洋、尚淵、黃紡、韋永貴、曾龍華、華一諦、劉啟、王國軍、明潔、李強俊、朱警、陳偉國、江美云
編輯:liqing
相關閱讀
江蘇揚州:今年實施五大攻堅行動提升城市綠化
城市道路綠化增綠行動。利用今年春季綠化黃金季節,針對城市道路綠化達標率、林蔭路覆蓋率等指標,全面開展道路綠化增綠提綠補綠,重點對87條道路的行道樹“有綠無蔭、有景少蔭”、綠化品種單一等問題進行整改,形成配置合理、錯落有致、層次清晰的道路綠化景觀【詳細】
北京昌平新城東區將打造濱水商業消費新地標
昌平新城東區位于昌平區南邵鎮,規劃建設用地面積11平方公里,規劃人口12萬,圍繞打造首都北部消費新地標編織街區控規已獲批。未來,昌平新城東區將打造成為京北體驗消費示范區、山水宜居典范城區、高水平綜合服務承載區和智慧產研創新園區【詳細】
南寧園博園舉辦“禮樂園博·南寧花朝盛典”
活動期間,南寧園博園還舉辦了漢服新秀大賽、同袍巡游、及笄成人禮、國風婚禮妝照展示、明制婚禮儀式典禮、六藝游園、書畫體驗、國風集市等精彩紛呈的活動,同時邀請眾多知名國風模特參與表演展示【詳細】
成都首屆“最美公園”評選結果出爐
據成都市公園城市建設管理局相關負責人介紹,本次“最美公園”評選范圍包括23個區(市)縣已建成開放的1514個公園,包括綜合公園、口袋公園,還有郊野公園【詳細】



