新電競時代啟航——佛山保利夢工場展示中心
項目地點:廣東省·佛山市
客戶:保利華南實業有限公司
建筑設計:深圳市歐博工程設計顧問有限公司
室內設計:深圳市朗昇環境藝術設計有限公司
景觀設計:深圳市麥墾景觀規劃設計有限公司
燈光設計:BPI碧譜照明設計有限公司
建筑攝影:張超、彥銘
設計范圍:規劃 / 建筑
主要功能:產業 / 商業 / 辦公 / 酒店 / 公寓
用地面積:92750 ㎡
總建筑面積:353828 ㎡
電競展示中心建筑面積:2343m²
設計|竣工年份:2018 | 2019


佛山地處珠江三角洲腹地,毗鄰港澳,與廣州共同構成“廣佛都市圈”,屬于“粵港澳大灣區”的重要組成部分。2019年世界頂級電競賽事英雄聯盟職業聯賽春季總決賽在佛山舉行,IG戰隊奪冠,向世界證明了中國電競戰隊的實力。佛山南海區早已開始布局電競產業發展,對電競產業已有初步規劃,營造了適合電競產業落戶的氛圍。
佛山保利夢工場位于佛山南海區三山新城板塊環島西路臨江片區,占地面積92750㎡,毗鄰廣州南站,交通便利,區位條件良好。項目總體規劃圍繞國家A級電競館,打造一個集產業、商業、辦公、酒店、公寓為一體的電競主題綜合園區—High Park,總建筑面積約35萬㎡。2019年12月,隨著電競展示中心(電競副館)的建成,主館也計劃于2021年建成。


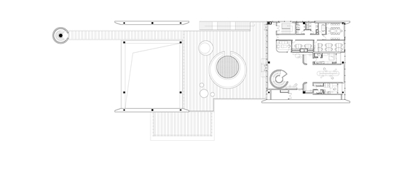
規劃展示、電競體驗和主題商業三個功能的“容器盒子”相互穿插咬合置入場地,懸浮于水面之上。U型折板倒置成廊,鋁板表皮與內部玻璃盒子虛實結合,強化不同空間的朝向,聚焦鄰里交流。主入口退讓場地三角地塊形成廣場,并通過線性的景觀處理將人流引入場地,創造與居民對話的開放共享空間。室內空間流線延續虛實轉換的理念,從建筑主入口穿過“時空隧道”進入展示中心內部。10米通高的電競展示大廳增加垂直維度的視覺感受,水平維度設置可全扇開啟的西向幕墻,模糊建筑室內外界限,實現空間延伸。
電競體驗區為半封閉空間,體驗者可以參與模擬競賽和VR互動體驗。位于建筑中部的旋轉樓梯將來訪者指引至二層樣板區域,由娛樂至生活,詮釋年輕人在同一空間內生活方式的靈活轉變。二層設有屋頂露臺,來訪者可以通過二層連廊直達位于西側廣場上設有旋轉樓梯的“時空塔”,在此感受多變的視角。



展示中心立面采用模塊化三角形鋁板構件排列組合,陽光直射時,淺色氟碳噴涂鋁板反射出金屬光澤,突出建筑的體量感;夜晚燈光著重強調構件的方向性,鋁板側邊的縫隙中透射出光線,增強立面韻律感,建筑則消融于環境。同時,利用水景中光的倒影對建筑空間進行視覺擴展。
未建成的電競主館位于展示中心北側,建成后將成為整個產業園的視覺中心。輕盈懸浮的形體、失重、傾斜的造型,表現虛擬世界和“電競”的速度、活力和想象力。全面竣工后的佛山保利夢工場·粵港澳大灣區電競文創產業中心將成為大灣區乃至全亞洲最具影響力的電競文創產業集聚區與高端人才聚集地,引領電競文創產業融合,推動電競產行業的增長與創新。















編輯:王子悅
相關閱讀
江蘇揚州:今年實施五大攻堅行動提升城市綠化
城市道路綠化增綠行動。利用今年春季綠化黃金季節,針對城市道路綠化達標率、林蔭路覆蓋率等指標,全面開展道路綠化增綠提綠補綠,重點對87條道路的行道樹“有綠無蔭、有景少蔭”、綠化品種單一等問題進行整改,形成配置合理、錯落有致、層次清晰的道路綠化景觀【詳細】
北京昌平新城東區將打造濱水商業消費新地標
昌平新城東區位于昌平區南邵鎮,規劃建設用地面積11平方公里,規劃人口12萬,圍繞打造首都北部消費新地標編織街區控規已獲批。未來,昌平新城東區將打造成為京北體驗消費示范區、山水宜居典范城區、高水平綜合服務承載區和智慧產研創新園區【詳細】
南寧園博園舉辦“禮樂園博·南寧花朝盛典”
活動期間,南寧園博園還舉辦了漢服新秀大賽、同袍巡游、及笄成人禮、國風婚禮妝照展示、明制婚禮儀式典禮、六藝游園、書畫體驗、國風集市等精彩紛呈的活動,同時邀請眾多知名國風模特參與表演展示【詳細】
成都首屆“最美公園”評選結果出爐
據成都市公園城市建設管理局相關負責人介紹,本次“最美公園”評選范圍包括23個區(市)縣已建成開放的1514個公園,包括綜合公園、口袋公園,還有郊野公園【詳細】



