海躍潤園丨老四合院變身記,讓北京重回北平

©高憶青
不野心勃勃,不完全服從;
順應當下需求,塑造出一些“新”的個性,
也保有一點對于“舊”的敬畏;
建筑像是在與場所的對話中自然生長,
小心翼翼地尋找著一種平衡。
夢里的家
ART
想法主導一切!

▲項目概覽©鄒磊
項目概況
此項目位于北京老城區的心臟地帶沙灘北街。
在北京日益改變的城市生活圈中,
靠近景山的胡同還難得地保留著原有的城市肌理。
老宅北房5跨開間,西房2跨開間,
初入老宅,沒有文物似的古韻,
也無法用精美來形容。
歲月留在老屋中的氣息,
彌散在陳舊的木屋架之間,
顫巍巍地坐在皇城腳下,
寧靜、祥和。

▲場地原貌©拾院
我們經常看到一些節目里,
原本破舊狹小的老屋,
在設計師的手下搖身一變,
成為干凈整潔、寬敞明亮、設計感十足的空間。
讓院落景觀成為區別于城市建筑的
一道美妙的風景線。
改造名稱:拾院
庭院面積為50㎡,業主是建筑專業出身,
和海躍共同設計完成了庭院景觀設計和施工落地。
整體庭院硬裝結構的基調采用青灰
色調老石板,搭配褐色老松木,
讓空間更加莊重、古樸,
與古建呼應。

▲改造前&改造后

▲改造前&改造后

▲改造前&改造后

▲改造前&改造后

▲海棠與楓樹©鄒磊
入院后,首先映入眼簾的是一棵高大
的海棠當娜,白花粉瓣,秋冬掛果。
穿過門廊左側是儲物間,
右側的白丁香從門廊外伸到門廊內;
進入院子左側的拱形門洞上依附著爬山虎,
將思緒拉進空靈的原始自然中。

▲互通區域©高憶青
拱廊下的時光隧道內,設計了
休歇操作臺、清洗臺的功能設施。
連接到休閑小憩活動區,
與室內廚房互通,內外交互。

▲傍晚的院落©高憶青
當夜幕降臨,
來到屋頂,坐在露臺上,
院落的一切事物盡收眼底,
只聽風聲,蟬聲,人聲。
設計過程

▲平面布局圖©楊澤







▲效果圖©楊澤
設計思路:初步溝通時,
了解到業主是土生土長的北京人,
后來求學美國,成為一名建筑師。
在經歷了在海外學習建筑、從事建筑實踐后,
如何讓破敗的老四合院重生,
讓大家的居住環境變得更好,
成了他思考的問題。
庭院的宗旨是讓主人在家的生活得到升華,
寄托情感,營造出鬧市中的世外桃源,
也是心靈的一方凈土。
植物選擇:整體花園主景采用海棠當娜,
副景為中國紅楓、丁香、爬山虎、繡球等植物。
施工過程

▲設計師測量草稿

▲施工現場

▲鋪灑草籽
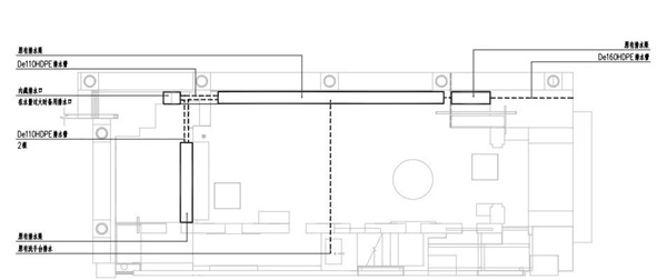
排水工程
院子的排水工程充分考慮了
北京夏天暴雨現象。
整個庭院設計了不同的排水方式,
采用了線性排水、排水暗管、排水溝,
以及應急排水,使得不同來水源
均能有效排出。
地面花崗巖小石塊大約5cm的厚度,
保證了滲水效果。
暗渠功能良好,既不影響美觀,
又保持了排水順暢。
今年夏天經歷幾場暴雨,
也沒有出現積水現象。

▲雨中拾院©鄒磊

▲排水平面圖©楊澤

▲排水工藝
庭院生活
住在這樣的老北京胡同中,
更能貼切的感受到濃郁的老北京文化,
推開房門,“自然”便涌了進來。
當窗外的風景變成最奢華的裝飾,
設計的表達和空間氛圍的營造便
成為一種“順勢而為”的選擇。

▲動靜皆宜的庭院生活

▲拾院初雪©拾院
項目信息
項目名稱:拾院
項目地點:北京市東城區沙灘北街
建筑設計:拾院工作室
景觀設計:北京海躍潤園景觀設計×拾院工作室
項目主創:楊澤
庭院面積:50㎡
施工周期:90天
設計風格:自然簡約
建成時間:2021年
項目類型:綜合空間
空間攝影:高憶青、鄒磊
編輯:liqing
相關閱讀
江蘇揚州:今年實施五大攻堅行動提升城市綠化
城市道路綠化增綠行動。利用今年春季綠化黃金季節,針對城市道路綠化達標率、林蔭路覆蓋率等指標,全面開展道路綠化增綠提綠補綠,重點對87條道路的行道樹“有綠無蔭、有景少蔭”、綠化品種單一等問題進行整改,形成配置合理、錯落有致、層次清晰的道路綠化景觀【詳細】
北京昌平新城東區將打造濱水商業消費新地標
昌平新城東區位于昌平區南邵鎮,規劃建設用地面積11平方公里,規劃人口12萬,圍繞打造首都北部消費新地標編織街區控規已獲批。未來,昌平新城東區將打造成為京北體驗消費示范區、山水宜居典范城區、高水平綜合服務承載區和智慧產研創新園區【詳細】
南寧園博園舉辦“禮樂園博·南寧花朝盛典”
活動期間,南寧園博園還舉辦了漢服新秀大賽、同袍巡游、及笄成人禮、國風婚禮妝照展示、明制婚禮儀式典禮、六藝游園、書畫體驗、國風集市等精彩紛呈的活動,同時邀請眾多知名國風模特參與表演展示【詳細】
成都首屆“最美公園”評選結果出爐
據成都市公園城市建設管理局相關負責人介紹,本次“最美公園”評選范圍包括23個區(市)縣已建成開放的1514個公園,包括綜合公園、口袋公園,還有郊野公園【詳細】



