園冶杯參賽作品丨嘉興華潤潤府項目北地塊景觀花境工程
項目概述
項目位于浙江省嘉興市,以“綠野仙蹤”作為花境主題,四個區域分別以綠野、綠谷、綠蹤、綠波四個主題來詮釋。色彩以綠色為主,點綴藍、紫、粉色,營造一種幽靜野奢的氛圍,開啟一段沉浸式的山林之旅。從喧囂到安靜,從城市到家園,在奔波忙碌時坐擁一方幽靜,回到一處可靜享時光、置放心靈的歸處。

花境主題平面圖
設計思路
設計主題:綠 野 仙 蹤
◆綠野——自然生態
◆綠谷——野趣純凈
◆綠蹤——浪漫趣味
◆綠波——嫣然芬芳

花境種植區平面分布圖:
設計亮點
01:架空層,綠野主題
位置: 位于樓層底部的架空層
思路:打造蔭生、熱帶花境,選用葉片碩大的天堂鳥和滴水觀音,通脫木,搭配枯樹、鳥巢蕨、腎蕨、巴西美人、玉簪、大吳風草、金葉石菖蒲等植物來進行整個空間的打造。帶來純凈的綠意,寧靜且高級感。



02:入戶花園,綠谷主題
位置:位于入戶花園,進入樣板間的綠地內
思路:清新簡約配置手法,色彩以綠色為主,通過以蒲葵、天堂鳥、滴水觀音、圓錐繡球、無盡夏等大葉植物做為焦點,搭配亞麻、蛇鞭菊、花葉玉蟬花等豎向線條植物,填充玉簪、腎蕨、東方莢果蕨等,點綴綠白色芙蓉菊,豐富畫面色彩。





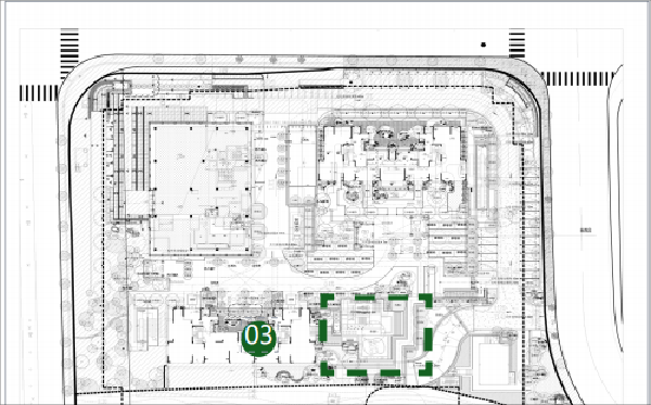
03:成長花園,綠蹤主題
位置:花境點位三,位于成長花園
思路:色彩以綠,橙、黃。結合上層喬木空間,花境植物以不同明度的綠色如狐尾天門冬、六月雪腎蕨、大吳風草等營造生機盎然的整體基底。大葉植物如無花果、象腿蕉、無盡夏、向日葵、松果菊等做焦點,以線型材料火炬花棒冰、花葉玉蟬花、百子蓮等形成質感的對比,增加透視。點綴金雞菊、繡線菊等宿根花卉,營造溫暖、趣味的花境效果。點綴紫色薩利芳、滿天星、草海桐,與主橙、黃色互補。




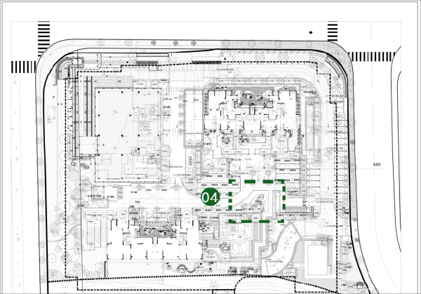
04: 入口花園,綠波主題
位置:花境點位四,位于小區入口儀式花園
思路:色彩以綠、粉、紫點綴,以大葉植物蒲葵、無盡夏、綠葉美人蕉、芭蕉金盤,穗花牡荊等為焦點,填充大吳風草、腎蕨,薩利芳鼠尾草、藍霧草、八寶景天、穗花婆婆納、香彩雀等,呈現綠意盎然生氣勃發的景觀效果。




項目名稱:嘉興華潤潤府項目北地塊景觀花境工程
項目地點:浙江省嘉興市
項目面積:200㎡
業主單位:嘉興潤商建設開發有限公司
設計單位:蘇州滿庭芳景觀工程有限公司
主創設計:覃樂梅
施工單位:蘇州滿庭芳景觀工程有限公司
項目時間:2023.5
編輯:liqing
相關閱讀
園冶杯參賽作品丨瀘州優品道半山峰景
為瀘州人定制一座3D森境,讓屬于瀘州的山水回歸。森系主題景觀,一場瀘州立體山水空間的新體驗 【詳細】
第十三屆江蘇省園藝博覽會總體方案獲批通過
打造園博園、舉辦園博會,有利于提升江陰城市能級、放大自然稟賦、打響文化品牌、增強科創實力。記者從江陰獲悉,第十三屆江蘇省園藝博覽會總體方案近日獲批通過,相關部門正積極籌備,全力展現江陰風采【詳細】
第四屆城市副中心綠色發展論壇開幕
什么顏色最能代表城市副中心?昨天上午,第四屆北京城市副中心綠色發展論壇開幕,50余位國內外知名專家學者、企業家代表及政府部門負責人出席。記者采訪到了其中幾位,在他們眼中,“綠”已成為城市副中心最鮮明底色【詳細】
“中華武術遺產保護與傳承計劃”啟動
聯合發起“中華武術遺產保護與傳承計劃”,將選取具有代表性的拳種與武術發源地,以視頻形式生動講述中華武術的源起、演變和現狀,激發人們對中華武術和中華優秀傳統文化的認同與熱愛【詳細】



